
Klassisch & gepflegt: 3,5-Zimmer-Eigentumswohnung in Bochum-Höntrop
159.000 €
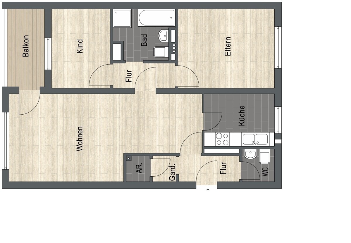
3,57% Käuferprovision inkl. gesetzl. geltender MwSt.Diese gepflegte 3,5-Zimmer-Eigentumswohnung mit ca. 76 m² Wohnfläche befindet sich im 2. Obergeschoss eines ruhigen und gut instandgehaltenen Wohnkomplexes in begehrter Lage von Bochum-Höntrop. Bequem erreichen Sie die Wohnung sowohl über das Treppenhaus als auch barrierearm mit dem Aufzug.
Bereits beim Betreten der Wohnung überzeugt der durchdachte Grundriss: Der großzügige Wohn- und Essbereich bildet das Herzstück der Immobilie und bietet Zugang zum sonnigen Südbalkon, der zum Entspannen und Verweilen einlädt. Vom Wohnbereich aus gelangen Sie in den privaten Teil der Wohnung, der zwei Schlafzimmer sowie ein teilweise modernisiertes Badezimmer umfasst. Auch die Küche ist direkt vom Wohnbereich aus erreichbar. Das Gäste WC im Eingangsbereich rundet die interessante Aufteilung ab.
Die Wohnung wurde über die Jahre hinweg stets gepflegt und regelmäßig renoviert. Kunststofffenster mit Doppelverglasung sowie elektrische Rollläden sorgen für Komfort und Energieeffizienz.
Ein besonderes Plus: Die Wohnung gehört zu einer soliden Eigentümergemeinschaft mit hoher Rücklagenbildung – ein wichtiger Aspekt für Werterhalt und zukünftige Maßnahmen. Ein zur Wohnung gehörender Tiefgaragenstellplatz rundet das Angebot ab.
Mit etwas gestalterischem Feinschliff lässt sich hier ein behagliches Zuhause schaffen – ideal für Paare, kleine Familien oder auch als Kapitalanlage.

- 3,5 Zimmer auf ca. 76 m² Wohnfläche
- Obergeschoss mit Aufzug
- Gepflegter Zustand, laufend renoviert
- Südbalkon mit Überdachung
- Teilweise modernisiertes Bad
- Kunststofffenster mit Doppelverglasung und elektrischen Rollläden
- Tiefgaragenstellplatz inklusive
- Hoher Rücklagenstand in der Eigentümergemeinschaft

Entfernungen
Lage
Die Wohnung befindet sich in ruhiger Wohnlage im beliebten Bochumer Stadtteil Höntrop. Das Objekt liegt in einer verkehrsberuhigten Straße in einem gepflegten Wohnumfeld mit guter Nachbarschaft. Einkaufsmöglichkeiten, Schulen, Kindergärten sowie der Südpark befinden sich in fußläufiger Nähe. Die Anbindung an den öffentlichen Nahverkehr ist sehr gut: Die S-Bahn-Station Wattenscheid-Höntrop sowie mehrere Buslinien sind schnell erreichbar. Auch die A40 liegt nur wenige Fahrminuten entfernt – ideal für Pendler. Insgesamt bietet die Lage eine ideale Kombination aus Ruhe, Nahversorgung und Mobilität.
WOHNLAGE
Weitere Informationen zur Wohnlage folgen in Kürze.
Geraldine Eisfeld
